Just Listed
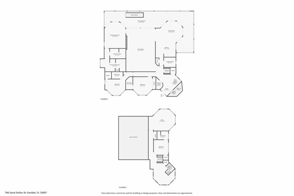
                                4
Beds
5.5
Baths
3533
SQ. FT.
Location
Local Weather
|  |  |  |  |  |  |  | 
4
Beds
5.5
Baths
3533
SQ. FT.
|  |  |  |  |  |  |  |